Beautiful Shed Home, Beautiful Land!

 

Are you looking for a lifestyle change? Ready to downsize? A chance to relax and unwind? This is for you! Take a step inside and immediately be wowed by this fully completed shed home with high ceilings situated on 6241m2 of beautifully maintained parklike grounds.

Located in the growing community of Glenwood this property will not last long at this price so get in quickly before it is snapped up!

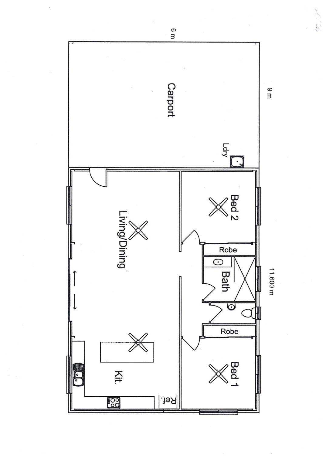
Home: 2 bedrooms with ceiling fans. Fully complete bathroom with modern fixtures and fittings. Open plan living dining area with ceiling fans. The large kitchen with plenty of storage is perfect for the chef in you.  It has a breakfast bar and a 900mm oven with gas stove top.

Outside: Large patio for entertaining at the rear or sitting out and enjoying the serenity of your surrounds with landscaped gardens. 3 x 5000 gallon water tanks.

8m x 7m shed with power and two roller doors, as well as an additional 2 bay car port.

Land: 6241m2 of cleared land with landscaped gardens that have been shaped.  The stunningly maintained property is ideal for relaxing and enjoying the outdoors.  There is a pump on the dam and the property irrigated throughout.  Plenty of garden beds to grow the fruits or veggies of your choice.

Don't miss out on the chance to become part of the fantastic and close-knit community. Get in touch and arrange an inspection with Pete today!

Although ONE Agency Gympie has provided all information related to this property to the best of our knowledge and resources, we shall not be held accountable or responsible for its accuracy. ONE Agency Gympie urge all buyers to conduct their own independent research and consult their own professionals to conduct due diligence before purchasing.

Features

Verandah Dam Low maintenance Water Tank High Ceilings
2 1 4 6,241 m2
Address 10 Dykes Rd, Glenwood
Price SOLD for $665,000
Property Type residential
Property ID 922
Category House
Land Area 6,241 m2

Agent Details

Pete Angle photo

Pete Angle

0438 864 158
View Profile
Keryn Angle photo

Keryn Angle

0434 379 533
View Profile