Large Solid Family Home

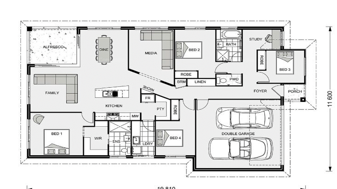
This large and well thought out floorplan contains 4 bedrooms, 2 living area plus a study and will not last long. Located in Gympie close to all amenities including Victory College, this property stands out from your standard home. This home is a perfect family home and is just waiting for you to move into.

A solid brick home with modern colours and décor close to Gympie CBD and Victory College.
The open plan living, dining and kitchen with tiled floors, a split system air conditioner all leading to the al fresco and large backyard beyond.
The kitchen has stainless steel appliances with a gas cooktop, stone benchtops, and a breakfast bar and a large walk in pantry.
The master bedroom has a walk in robe, and an ensuite with a double shower.
The other 3 bedrooms are large with built in robes and ceiling fans.
The main bathroom has a separate toilet and a bath and shower.
There is a large covered al fresco entertainment area with doors leading to a the living area and the master bedroom.
In backyard is large and fully fenced.

Don't miss out on the chance to become part of the fantastic and close-knit community. Get in touch and arrange an inspection with Pete today!

Although ONE Agency Gympie has provided all information related to this property to the best of our knowledge and resources, we shall not be held accountable or responsible for its accuracy. ONE Agency Gympie urge all buyers to conduct their own independent research and consult their own professionals to conduct due diligence before purchasing.

Features

Undercover outdoor area Fenced Low maintenance Close to school Split System Air-Conditioning Study Media Room Study
4 2 2 818 m2
Address 125 Old Maryborough Rd, Gympie
Price SOLD for $525,000
Property Type residential
Property ID 435
Category House
Land Area 818 m2

Agent Details

Pete Angle photo

Pete Angle

0438 864 158
View Profile
Keryn Angle photo

Keryn Angle

0434 379 533
View Profile