10 Noosa Road, Monkland

This property is too good to pass up!
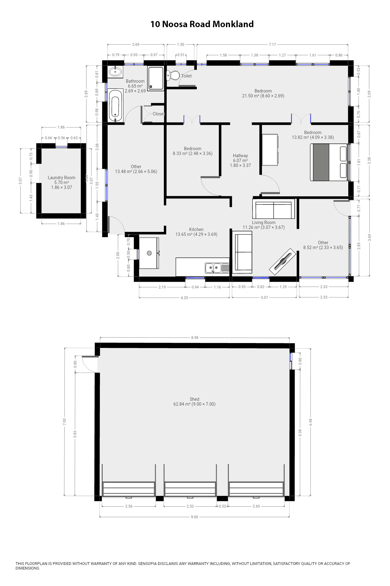
This 2 bedroom home with an additional sunroom is in a great location, is flood free, has a great sized block… and has an even better price. You need to be quick with this one as it is perfect for your first fixer upper or as an investment. Close to town and schools. This home is full of potential.

Home:
2 large bedrooms with ceiling fans.
Country style kitchen .
Living room is carpet with ceiling fan.
Large sunroom at back of house.
Bathroom has a shower, bath and a sink.
Sperate toilet room.
Outside closed in laundry.
1 x large 7m x 9m shed with roller doors.
Property also features solar, brand new Colourbond roof and a strong structure.
Fully fenced.
Backyard has enough room for everyone and includes mature trees and additional garden shed.
Don't miss out on the chance to become part of the fantastic and close-knit community. Get in touch and arrange an inspection with Pete today!

Although ONE Agency Gympie has provided all information related to this property to the best of our knowledge and resources, we shall not be held accountable or responsible for its accuracy. ONE Agency Gympie urge all buyers to conduct their own independent research and consult their own professionals to conduct due diligence before purchasing.

2 1 3
Address 10 Noosa Rd, Monkland
Price SOLD for $310,000
Property Type residential
Property ID 433
Category House
Floor Area 1,371 m2

Agent Details

Pete Angle photo

Pete Angle

0438 864 158
View Profile
Keryn Angle photo

Keryn Angle

0434 379 533
View Profile