Modern 4 Bedroom Home with Multiple Living Spaces

This 4 bedroom, 2 bathroom 3 living room home is fresh and modern and waiting for you. Located in Victory Heights this property has lots of extras to ensure you fall in love your new house!

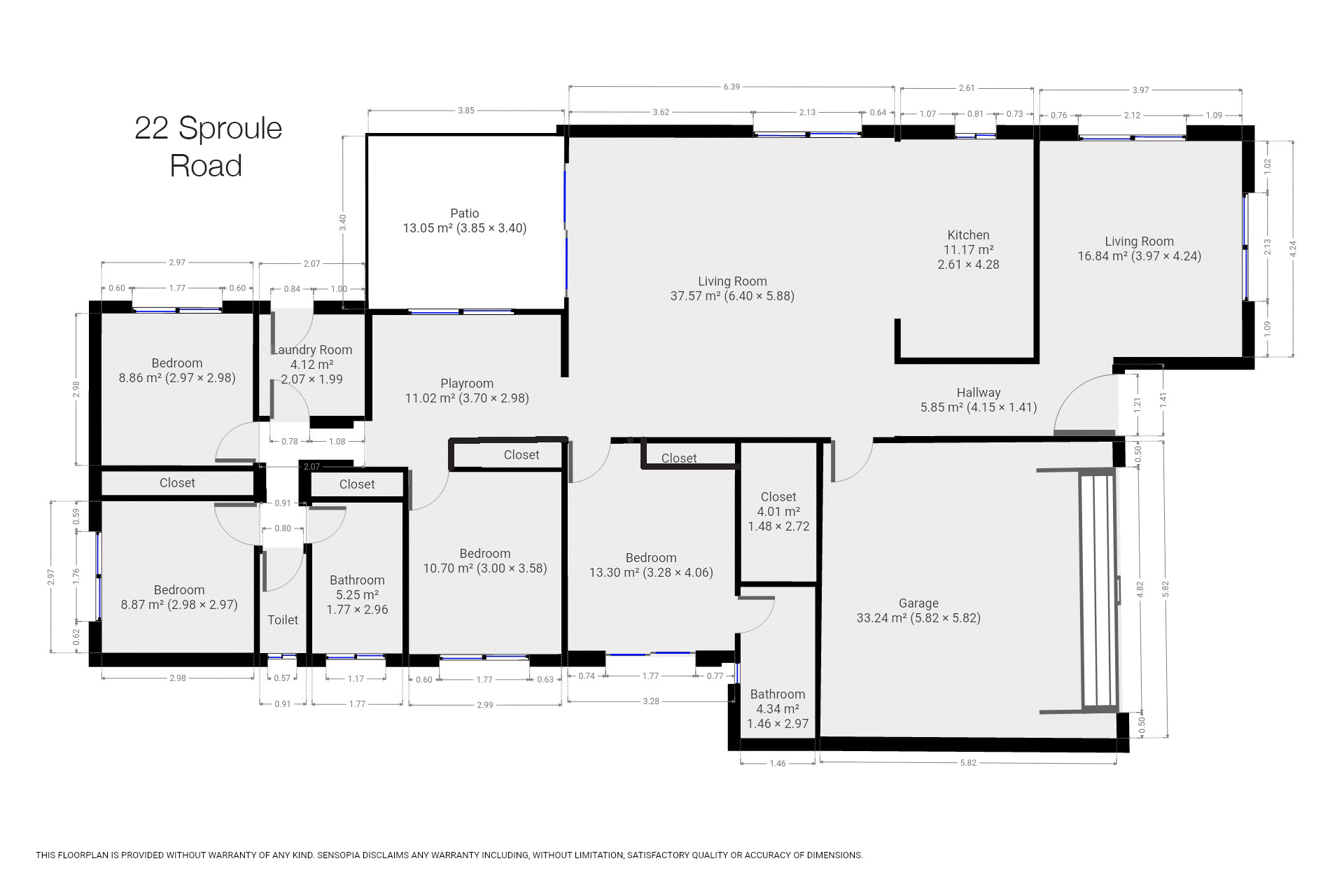
Home:
Solid brick lowset home set on a flat 834m2 landscaped and fully turfed block.
4 carpeted bedrooms all with ceiling fans and built in robes.
Master bedroom contains large built in robes and ensuite.
Main open plan living area has a kitchen with walk in pantry, dining and lounge with a ceiling fan and split system air conditioner that opens onto a large outdoor alfresco area.
Kitchen has stainless steel appliances, electric cooktop, dishwasher and lots of pantry space.
Main bathroom has shower, bathtub and separate toilet.
Internal laundry with door opening to the backyard.
Security screens throughout home to maintain that sense of security.

Outside:
Landscaped front and backyard with turf.
Fully fenced yard.
Town water and sewerage.

Don't miss out on the chance to become part of the fantastic and close-knit community. Get in touch and arrange an inspection with Pete today!
Although ONE Agency Gympie has provided all information related to this property to the best of our knowledge and resources, we shall not be held accountable or responsible for its accuracy. ONE Agency Gympie urge all buyers to conduct their own independent research and consult their own professionals to conduct due diligence before purchasing.

Features

Undercover outdoor area Fenced Safety Switch Smoke Alarms Split System Air-Conditioning
4 2 2 834 m2
Address 22 Sproule Rd, Gympie
Price SOLD for $420,000
Property Type residential
Property ID 270
Category House
Land Area 834 m2

Agent Details

Pete Angle photo

Pete Angle

0438 864 158
View Profile
Keryn Angle photo

Keryn Angle

0434 379 533
View Profile