Under Contract

Modern Family Living in a Quiet, Elevated Cul De Sac

 

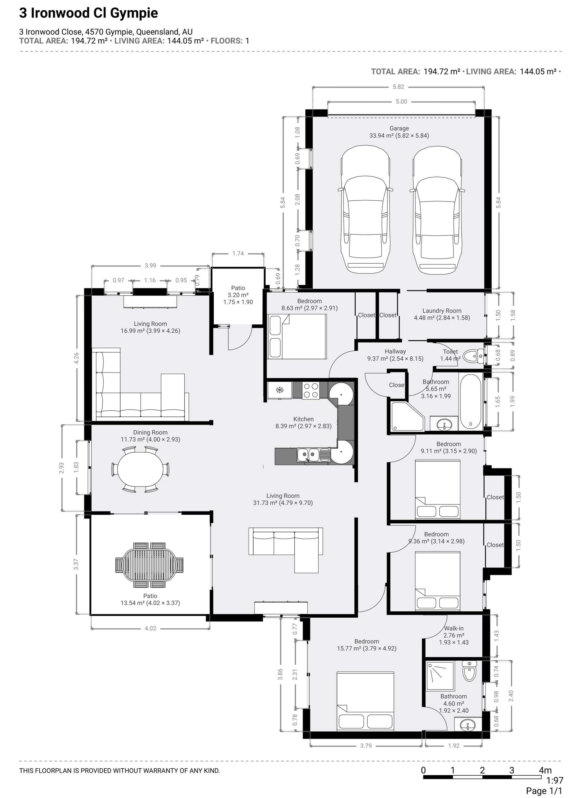
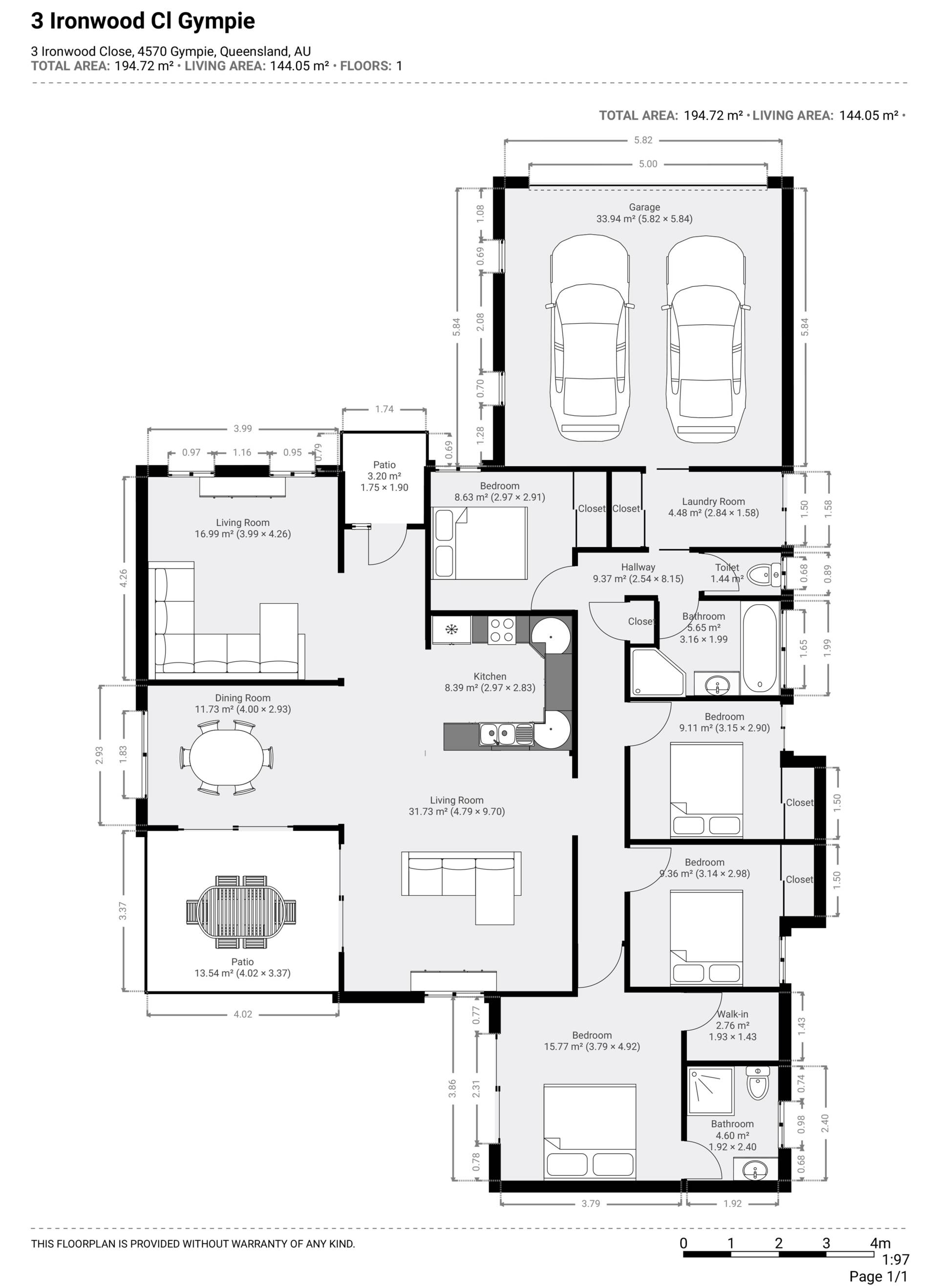
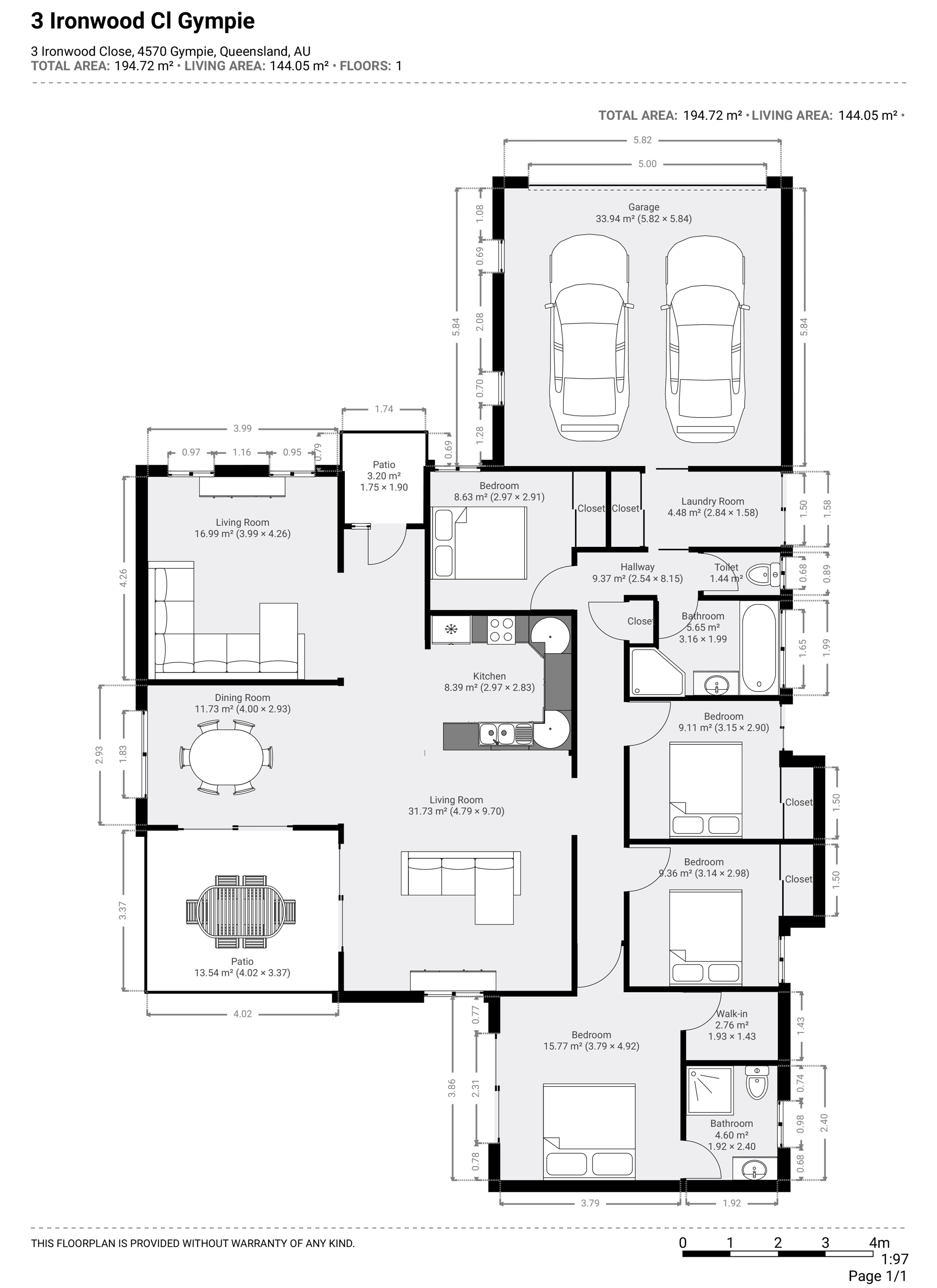
Set on a generous 1,122m² elevated block at the end of a peaceful cul-de-sac, this beautifully maintained brick home delivers comfort, privacy and a welcoming family lifestyle. Surrounded by quality homes in a sought-after estate, this property offers a lovely outlook, cooling breezes and the convenience of being close to schools, parks and the CBD.

Property Features

• Low-set brick and Colorbond home positioned well back from the street for added privacy
• Two living areas – a cosy carpeted lounge plus a spacious, air-conditioned open-plan family/dining zone
• Modern kitchen with electric wall oven, cooktop, dishwasher and excellent storage
• Master bedroom with walk-in robe and private ensuite
• Three additional bedrooms, all carpeted with built-ins and ceiling fans
• Family bathroom with separate shower and bathtub
• Internal laundry with ample cupboard space
• Covered patio ideal for year-round outdoor living
• Double remote garage with internal access

The Block

• Elevated 1,122m² allotment with outlook and breezes
• Fully fenced, low-maintenance backyard with side access 
• Landscaped gardens
• Easy access to estate walking paths and parklands

Investment

Currently rented at $560/week, with tenants happy to stay—ideal for investors seeking a solid return with future owner-occupier appeal.  Tenanted until February 2026.

Although ONE Agency Gympie has provided all information related to this property to the best of our knowledge and resources, we shall not be held accountable or responsible for its accuracy. ONE Agency Gympie urge all buyers to conduct their own independent research and consult their own professionals to conduct due diligence before purchasing.

Features

Undercover outdoor area Fenced Low maintenance
4 2 2 1,122 m2
Address 3 Ironwood Cl, Gympie
Price $720,000
Property Type residential
Property ID 1030
Category House
Land Area 1,122 m2

Agent Details

Pete and Keryn Angle photo

Pete and Keryn Angle

0438 864 158
View Profile
Ryan Bray photo

Ryan Bray

0422 359 473
View Profile