Peaceful Acreage Retreat –Immaculate Inside and Out on 7,168m2

Enjoy the tranquillity of country living with this beautifully presented modern Queenslander home set on a spacious 7,168m² block in the sought-after Glenwood area. Immaculately maintained inside and out, this property offers the perfect lifestyle opportunity for families, retirees, or anyone looking for space, privacy, and comfort.

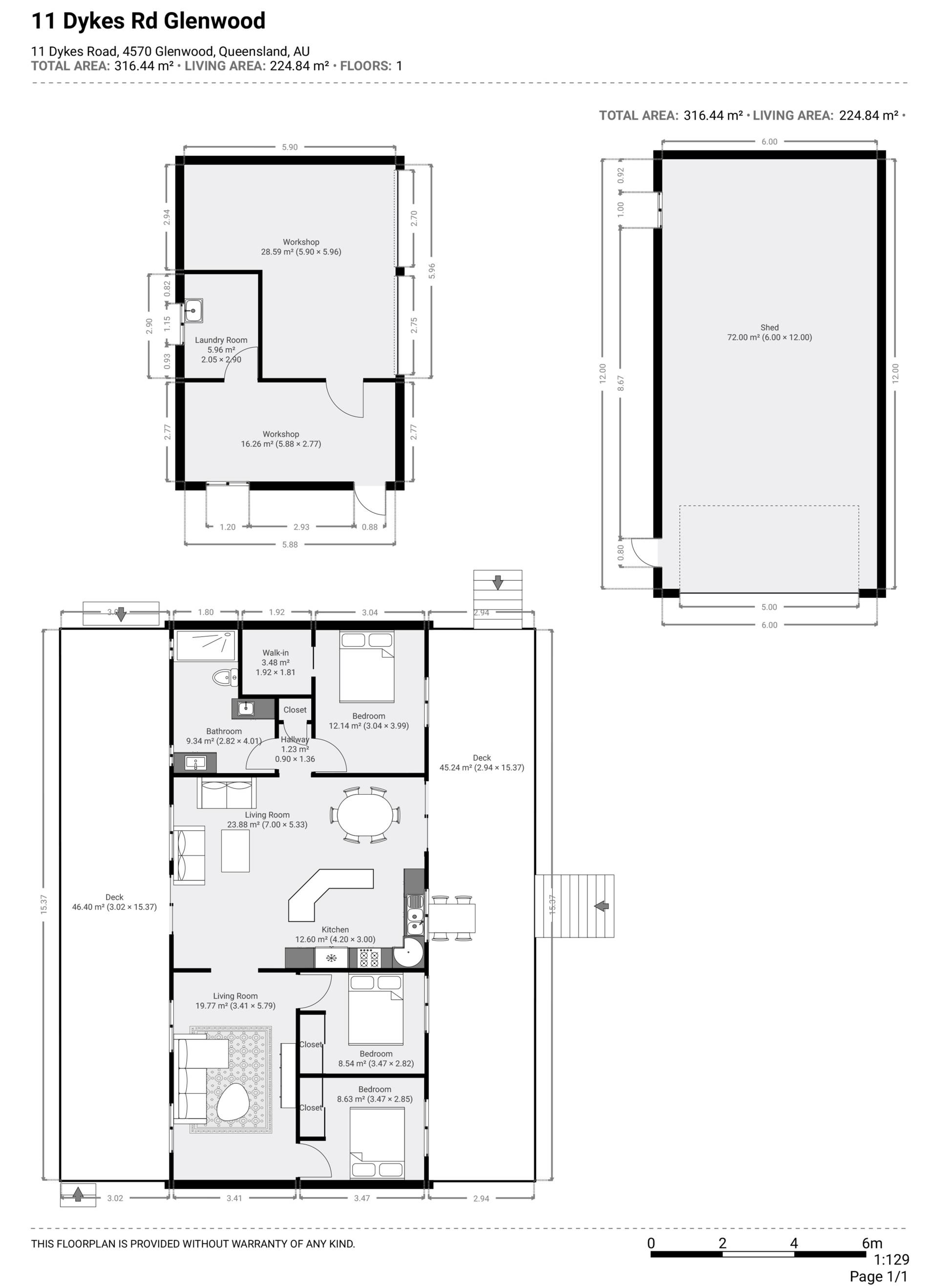
This modern home features three generously sized bedrooms, a central bathroom, and two separate living areas, providing flexible living options for the whole family. The open-plan kitchen, dining, and main living area is the heart of the home and comes equipped with a split system air conditioner to keep you comfortable year-round. Ceiling fans are installed throughout for added comfort and airflow.

Step outside and take in the beautiful, manicured gardens that surround the home – a peaceful oasis ideal for relaxing or entertaining. Two full-length verandahs at the front and rear offer the perfect spots to enjoy your morning coffee or an evening breeze.

Additional features include:

  • Two versatile sheds for storage, workshop, or hobby use one with additional toilet and laundry
  • Neat and tidy presentation throughout
  • Queenslander style home for low maintenance living
  • Fully usable 7,168m² block with plenty of space for kids, pets, or future improvements
  • Fully fenced house yard to keep your four legged friends safe

Located in the quiet community of Glenwood, this property offers a peaceful semi-rural lifestyle just a short drive to local amenities and easy access to Gympie or Maryborough.

Don't miss out on the chance to become part of the fantastic and close-knit community. Get in touch and arrange an inspection with Pete today!

Although ONE Agency Gympie has provided all information related to this property to the best of our knowledge and resources, we shall not be held accountable or responsible for its accuracy. ONE Agency Gympie urge all buyers to conduct their own independent research and consult their own professionals to conduct due diligence before purchasing.

Features

Verandah Undercover outdoor area Split System Air-Conditioning
3 1 5 7,168 m2
Address 11 Dykes Rd, Glenwood
Price SOLD for $780,000
Property Type residential
Property ID 937
Category House
Land Area 7,168 m2

Agent Details

Pete and Keryn Angle photo

Pete and Keryn Angle

0438 864 158
View Profile
Ryan Bray photo

Ryan Bray

0422 359 473
View Profile